Introduction
Location: Al Jurf Industrial Area 2 – a strategic location with easy access.
Total Area: 18,700 sq.ft
Space Details:
Total Plot Area: 16,320 sq. ft
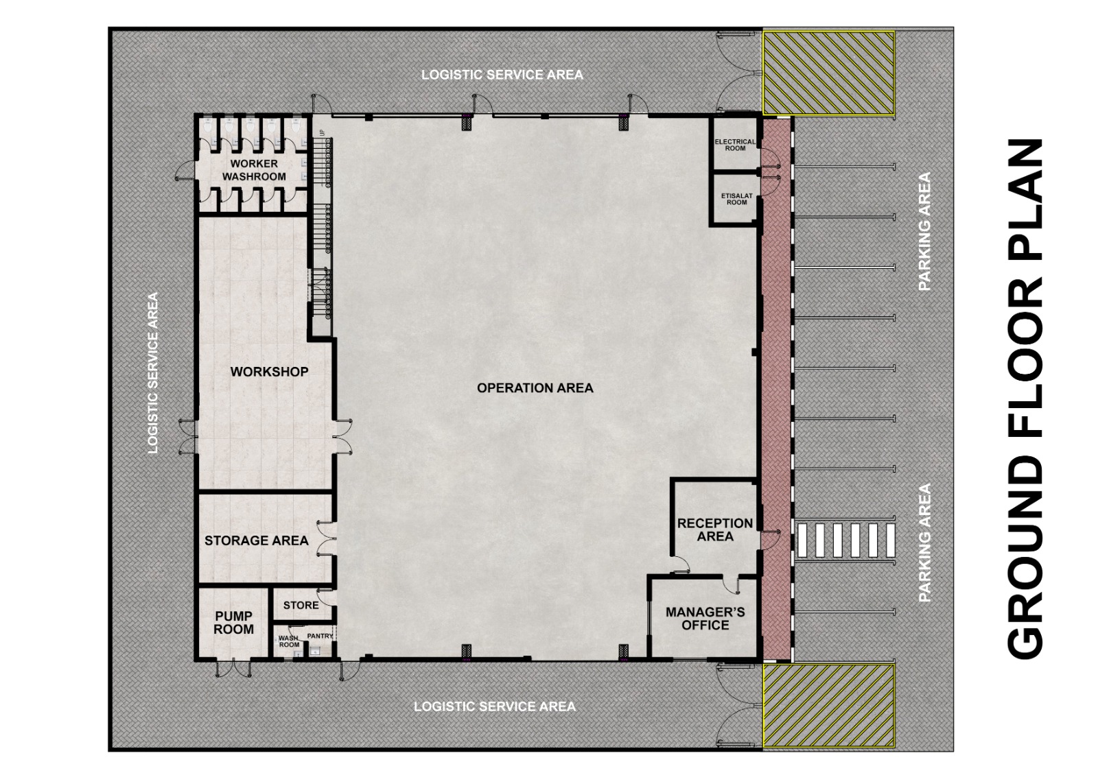
Ground Floor Area: 10,670 sq. ft
Mezzanine Floor Area: 2,380 sq. ft (ideal for offices or additional storage)
Logistics Service Area: 5,650 sq. ft within the boundary wall
Provides an ideal space for loading/unloading, truck parking, and efficient daily operations with privacy and convenience.
Rental Details:
Annual Rent: AED 750,000
Security Deposit: 10% (refundable at the end of the lease, subject to terms)
VAT: 5%





















